



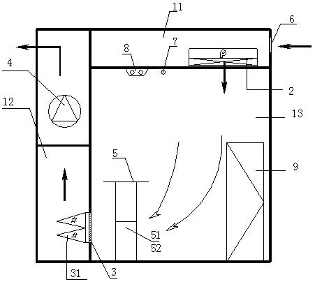
生物安全負壓棚|負壓室|負壓排風罩室內空氣經過預過濾器初濾,由小型離心風機壓入靜壓箱,再經空氣高效過濾器二級過濾送入室內。從高效過濾器出風面送出的潔凈氣流具有一定均勻的斷面風速,可以排除工作區原來的空氣,將塵埃顆粒和生物顆粒帶走,并經對面下側安裝有不銹鋼可開式百葉窗、初效過濾器和高效過濾器過濾后,經袋進袋出排風系統排出室內,以形成無菌的潔凈工作環境。佰倫生物安全負壓棚合理配置送風口和排風口的位置,形成單向流,并對進風和出風都做過濾處理,形成無菌的潔凈工作環境,既保護人員健康又保護環境。


生物安全負壓棚|負壓室|負壓排風罩產品鏈接:http://m.vb321.com/product/fuyapeng.html